煙囪加固設計(工業與火力發電)
一、應用范圍
主要解決一些電廠鋼筋混凝土煙囪由于使用年限較長或事故質量問題導致煙囪外壁、內壁及附屬構件出現混凝土碳化及各類病害,導致結構的承載力和耐久性降低,結構正常運行存在安全隱患,為使結構安全可靠運行,需對原結構進行承載力和耐久性加固處理。
二、設計依據
《建筑地基基礎設計規范》GB50007-2011
《混凝土結構后錨固技術規程》JGJ145-2004
《建筑抗震設計規范》GB50011-2010
《建筑工程抗震設防分類標準》GB50223-2008
《火力發電廠土建結構設計技術規定》DL5022-2012
《火力發電廠水工設計規范》DL/T5339-2006
《混凝土結構設計規范》GB50010-2010
《高聳結構設計規范》GB50135-2006
《建筑結構荷載規范》GB50009-2012
《混凝土結構加固設計規范》GB50367-2013
《鋼結構加固技術規范》CECS77:96
《煙囪設計規范》(GB50051-2013)
《工業建筑防腐蝕設計規范》(GB50046-2008)
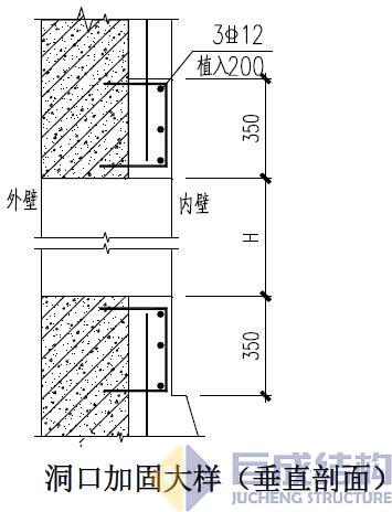
三、加固大樣圖
四、設計范例
煙囪加固設計施工圖 下載
- 上一篇: 渡槽加固設計(水利與水力發電)
- 下一篇: 冷卻塔加固設計(工業與火力發電)


