后澆清水混凝土面層設計
一、技術簡介:
清水混凝土技術在世界著名的一些地標建筑上均有有著廣泛的應用,由清水混凝土本身的材質紋理帶來的美感逐漸被大眾所接受。面層清水混凝土技術是在既有建筑物上新澆筑面層清水混凝土,在滿足結構加固同時,達到裝飾的效果。相較于現澆清水混凝土主要應用于新建建筑,面層清水混凝土技術則是可應用于各種既有建筑的改造,也可以對具有安全隱患的結構進行加固,即實現建筑的安全又可實現建筑的美觀,一舉多得。
二、設計依據
《建筑結構荷載規范》(GB5009-2012)
《建筑結構可靠度設計統一標準》(GBJ50068-2001)
《混凝土結構設計規范》(GB50010-2010)
《混凝土結構加固設計規范》(GB 50367-2013)
《混凝土結構后錨固技術規程》(JGJ 145-2013)
《建筑結構加固工程施工質量驗收規范》(GB50550-2010)
《清水混凝土應用技術規程》(JGJ 169-2009)
《混凝土結構工程施工質量驗收規范》(GB50204-2015)
《普通混凝土配合比設計規程》(JGJ 55-2011)
三、技術特點:
應用范圍較廣對于各種結構形式的既有建筑均可實現。
可為建筑結構進行加固,在美化建筑的同時也使建筑的安全性得到保障。
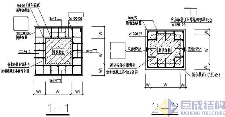
四、設計大樣:
面層清水混凝土(柱)設計大樣
設計范例:
地鐵清水混凝土墻結構配筋大樣圖 下載
- 上一篇: 建(構)物頂升糾偏加固
- 下一篇: 擴孔自鎖錨固技術


